Story Highlights:
• Tavistock’s Next Big Move: Luminary Square is the latest mixed-use community from Tavistock, the award-winning developer behind much of Lake Nona’s growth.
• 322 Apartments Coming Soon: The project will offer a mix of studios to three-bedroom apartments, designed by renowned firms LRK and Garrison Jones.
• Retail + Dining Hub: Nearly 26,500 square feet of space is dedicated to fast-casual and fine-casual dining, plus retail shops—all walkable from Laureate Park homes.
• Community-Centered Design: Includes a Village Green for events, open courtyards, a pool, and a five-story garage to support both residents and guests.
• Steps from Parks and Schools: Located near a new school and a 14-acre park with pickleball courts and playgrounds, Luminary Square connects lifestyle and location.
Conceptual design by LRK
Universal + Elon Musk’s Boring Company? The I-Drive Rumor That Could Change Everything
If you’ve been keeping an eye on Lake Nona, you already know it’s one of Orlando’s fastest-growing neighborhoods. And now, it’s getting even better. Tavistock—the award-winning developer behind many of Lake Nona’s most popular communities—is rolling out a brand-new project: Luminary Square.
Set right in the heart of Laureate Park Village Center, this new development is bringing a fresh mix of upscale apartments, dining, and retail to one of the most walkable spots in the area.
Let’s break down what’s coming—and why this could be your next home.
What Is Luminary Square in Laureate Park and Why Is It a Big Deal?
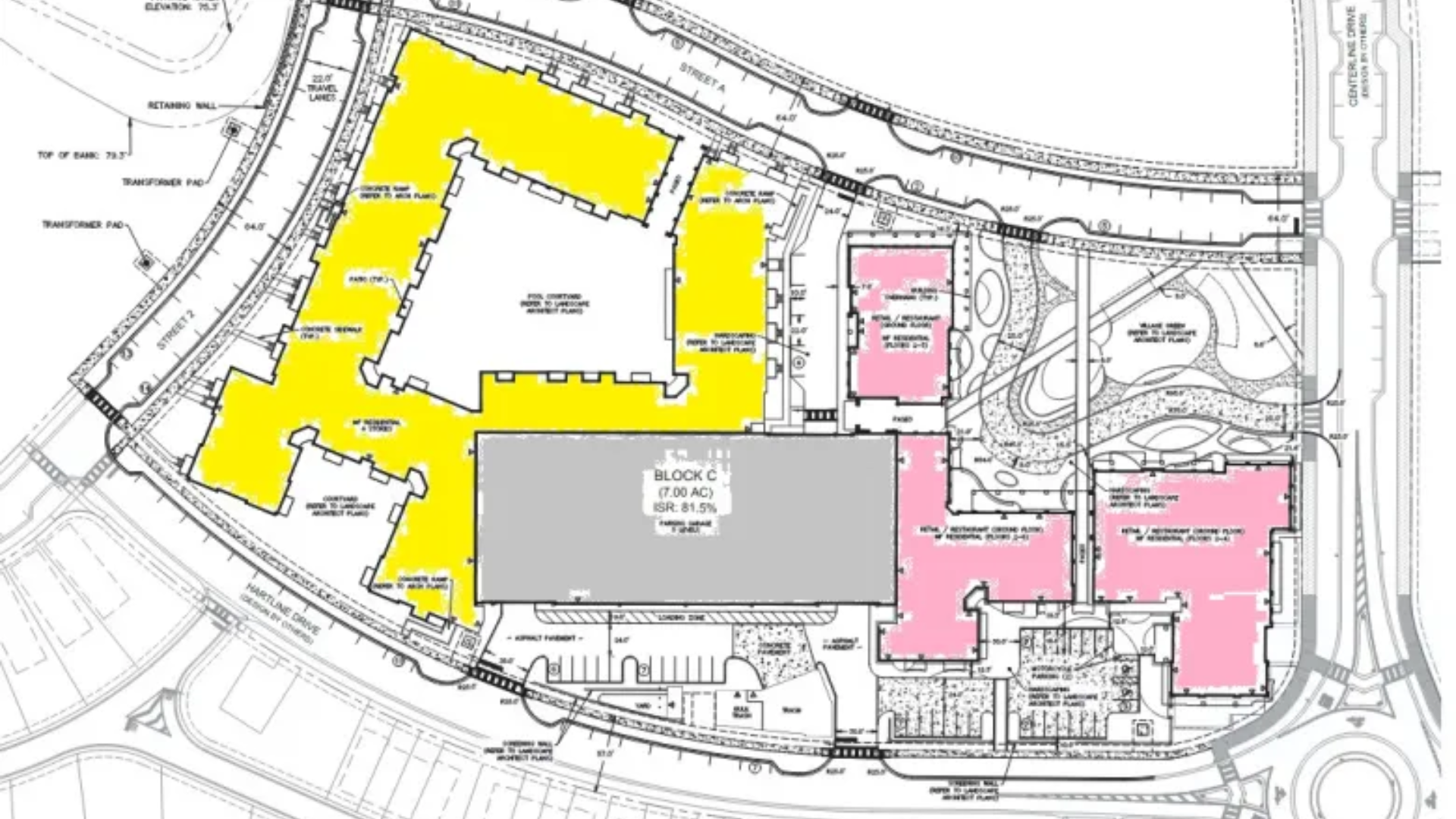
Luminary Square is a mixed-use community that blends modern apartment living with retail and dining—all within walking distance to schools, parks, and everything Lake Nona has to offer.
Here’s what’s planned:
-
•322 new apartments ranging from studios to three-bedrooms
-
•Over 6,500 square feet of retail space
-
• Nearly 20,000 square feet of dining, including fast casual and fine casual restaurants
-
• Designed courtyards, open-air gathering spaces, and a village green for events
-
• A five-story parking garage for residents and visitors
It’s being built right in Laureate Park Village Center, which is already one of Lake Nona’s most vibrant hubs. That means easy access to shops, restaurants, and the new school nearby—plus just a short walk to a massive new 14-acre park with pickleball courts, playgrounds, and picnic shelters.
Who Is Building Luminary Square in Lake Nona?
The project is being developed by Tavistock Development Company, the same team behind other standout Lake Nona projects like Watermark and The Concord. These past developments helped them earn the title of Developer of the Year—and it’s clear they’re keeping that same level of quality and ambition with Luminary Square.
The design is led by LRK and Garrison Jones, two award-winning firms known for crafting communities that feel modern, functional, and built to last.
Site Plan Courtesy of Langan
What Types of Apartments Will Be Available at Luminary Square?
Luminary Square will offer a variety of floor plans—from efficient studios to spacious three-bedroom layouts. Whether you’re a young professional, a growing family, or someone looking to downsize into a low-maintenance lifestyle, there will be something here for you.
While exact interior details haven’t been released yet, you can expect the usual Tavistock standards: thoughtful layouts, stylish finishes, and that signature blend of comfort and design.
What Amenities Will Luminary Square Residents Have Access To?
This is more than just an apartment building—it’s a lifestyle hub. Residents at Luminary Square will enjoy:
-
• Beautifully designed open courtyards for relaxing or socializing
-
• A resort-style pool
-
• A Village Green for community events, concerts, and local gatherings
-
• Easy access to the new Laureate Park school and 14-acre park next door
-
• A private five-story parking garage
It’s the kind of setup that lets you live, work, and play without ever leaving your neighborhood.
Map by Langan
When Will Luminary Square Be Completed?
Construction is already well underway. Roads are being prepped for the extension of Centerline Drive and Luminary Boulevard, laying the foundation for this next phase of Laureate Park’s growth.
While a firm completion date hasn’t been announced yet, Tavistock is known for moving quickly—and with roads and infrastructure already in progress, you can expect updates soon.
Should You Move to Luminary Square in Lake Nona?
Even if this “Vegas Loop in Orlando” rumor stays just that for now, the conversation itself shows where Orlando is headed: faster, easier, cooler ways to move around our city’s tourism hub. Whether it’s underground Teslas, high-speed trains, or pedestrian bridges worthy of EPCOT, one thing’s certain — I-Drive is getting an upgrade.
Until then, keep your eyes on the road… and maybe under it.
FAQs About the Luminary Square at Lake Nona
What is Luminary Square in Lake Nona?
Luminary Square is a new mixed-use apartment community being developed by Tavistock in the heart of Laureate Park Village Center, Lake Nona. It will feature 322 apartments, retail shops, restaurants, and walkable public spaces.
Who is the developer of Luminary Square?
Tavistock Development Company, known for shaping Lake Nona into one of Orlando’s top master-planned communities, is the developer behind Luminary Square.
Where is Luminary Square located?
Luminary Square is located in Laureate Park Village Center in Lake Nona, Orlando, FL—just blocks from a new school and a 14-acre park with pickleball courts and playgrounds.
When will Luminary Square be completed?
While the exact completion date hasn’t been announced, construction is already in progress and roads are being prepped for infrastructure like Centerline Drive and Luminary Boulevard.
What types of apartments are available at Luminary Square?
The apartment mix includes studio, one-bedroom, two-bedroom, and three-bedroom layouts designed by award-winning firms LRK and Garrison Jones.
What amenities will Luminary Square offer?
Residents will enjoy open courtyards, a resort-style pool, a Village Green for public events, on-site dining and retail, and a five-story parking garage.
Is Luminary Square walkable?
Yes, Luminary Square is designed to be a walkable community, with close access to parks, schools, shops, and dining—all within Laureate Park Village Center.
What dining options will be available at Luminary Square?
The development will offer nearly 20,000 square feet of dining space, including both fast-casual and fine-casual restaurants.
How does Luminary Square compare to other Tavistock projects?
Luminary Square joins other Tavistock successes like Watermark and The Concord, continuing the developer’s tradition of high-quality, mixed-use communities in Lake Nona.
Is Luminary Square a good place to live in Orlando?
Absolutely. With modern apartments, walkability, resort-style amenities, and a prime location in Lake Nona, Luminary Square is one of the most exciting new places to live in Orlando.
Why Choose Jared Jones?
As a top real estate agent with nearly 4,000 homes sold and over 20 years of experience in the Florida real estate market, I have the expertise needed to help you navigate today’s evolving landscape. Whether you’re looking to buy or sell, my deep understanding of market trends and personalized approach will provide you with the insights and strategies required for success.
Best Realtor in Lake Nona - Reach Out Today!
If you’re ready to make a move in Florida’s real estate market, don’t hesitate to reach out. Contact Jared Jones at 407-706-5000 (call or text) or email info@jaredjones.com for professional guidance and personalized service that will help you achieve your real estate goals.
Posted on S BrodyTrustindex verifies that the original source of the review is Google. Jared helped my wife and I find the right home in Saint Cloud FL. Jared and his team are truly "one call does it all " highly recommend and encourage folks to let his knowledge and experience help you. Relocating can be difficult make it easier with the right real estate agent. Simon & T. BrodyPosted on w mTrustindex verifies that the original source of the review is Google. Wish I could have 10 stars. I found Jared on You tube. I know a bit about real estate investing. I also know about building a team. .Jared is real deal!! He is who he says he is. Understands the Orlando market, We Jared Jones on You tube. Watched for Months. He is on top of the Orlando market! Made my call to Jared on July 4th closed on a great deal Oct 31st after touring investment props for 2 weeks end of September. Our transactions happened within a month of getting under 10/31/25. Jared helping us find our investment property and we just closed as of today Halloween October 31 Thank you and so happy we made that one call back in July! Scott and DonnaPosted on David AinsworthTrustindex verifies that the original source of the review is Google. My wife and I relocated from the Northeast where we lived our entire lives, to the Orlando area. In my search of videos about florida on YouTube I came across Jared's many video's. My perception was that he was highly knowledgeable and highly engaged in the real estate industry. When I contacted him and we spoke for the first time he quickly turned perception to reality. As we worked through the process it just got better and better. Excellent advice, consistent communication and support over the months we went through the process. When we found a house he advocated for us to the highest level to be sure everything transacted in our best interest. The owners even left an item I was adamant I did not want left, he drove his truck over after we closed, carried it out and disposed of it for us! Ladies and gents with the utmost seriousness look no further this guy knows his business from top to bottom. One of if not the best decisions we made in this entire process was to work with Jared. This guy is an absolute rock star. Don't think twice about it, you found your man.Posted on ishtiaque ahmedTrustindex verifies that the original source of the review is Google. This guy is THE BEST !!!! Very helpful and a great guide… he just got us a great place within very short time. And we love it. A great negotiator and a great Realtor.I wish him all the best in life 👍🙌🫡Posted on Lot LamTrustindex verifies that the original source of the review is Google. I would recommended to anyone who wants to buy and sell investment homes or retirement homes in central Florida . Jared Jones the broker who I trusted the most .Last month , we spent 3 days in central searching for investment homes . A month late , we got our investment home in central Florida. He was very knowledgeable in dealing sellers agents. He was trying his best to get good deal for us . I was very please the ways he was working with seller agent. We got what we wanted. So thank you Jared for assisting us found a nice investment home . Lam,Posted on Le HuaTrustindex verifies that the original source of the review is Google. It was a pleasure working with Jared and his team! Jared definitely advocated on our behalf as a buyer’s agent. Their team is super resourceful making it easy for us to own our first property in Florida. We super excited for our property and thank you so much Jared and your team!!Posted on Erica BergenTrustindex verifies that the original source of the review is Google. Jared was fantastic to work with. Professional and kind. He made our home buying experience a breeze. We were moving from NJ to Florida and he guided us to the best areas to look and stay away from to fit our needs. He answered every question in timely fashion and no question was too small. If we ever need another realtor we will definitely go back to him.Posted on Tim B.Trustindex verifies that the original source of the review is Google. Jared helped us find our new home and we could not have been happier. His knowledge of the area is amazing. He knows more then people that were born here. He got us into every home we were interested in and curated a list of homes for us to also check out. He was patient with us, answered all our questions, and helped us every way he could. If you want the best realtor in the area, he is it.Posted on Chad A. VaughanTrustindex verifies that the original source of the review is Google. I've worked with a lot of agents, and not all are built the same. Jared is head and shoulders above the average agent. Responsive, professional, detailed and genuinely cares for his clients. Working with Jared was a smooth and easy process with no hiccups -- top tier agent.Posted on Nomad Assets, LLCTrustindex verifies that the original source of the review is Google. Jared is absolutely fantastic to work with! He helped us with our search in the Clermont area, excellent communication, negotiation skills and overall fantastic knowledge on the greater Orlando area. We look forward to working with Jared on our next purchase!
Search Homes in Lake Nona, Florida
Jared Jones Real Estate Team Serving All of Central Florida
- Osceola County
- Orange County
- Lake County
- Polk County
- Seminole County
- Volusia County
- Broward County
- Marion County
- Flagler County
- Brevard County
- Pinellas County
- Hillsborough County




















